Capannone in vendita

Palermo, Via Michele Utveggio - Brancaccio
Informazioni in agenzia
4 locali 4 locali
3800 Mq 3800 Mq
2 bagni 2 bagni

Capannone in vendita

Palermo, Via Michele Utveggio - Brancaccio

Descrizione annuncio

BRANCACCIO

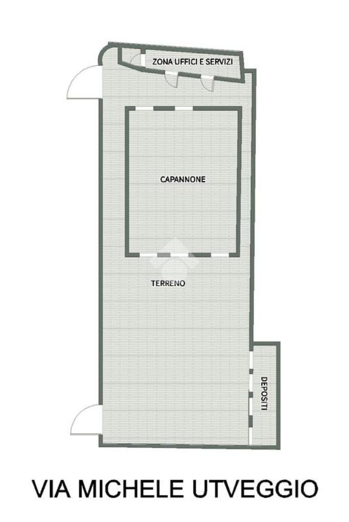
VIA MICHELE UTVEGGIO - Nella zona industriale di Brancaccio, a Palermo, si propone in vendita un ampio capannone di circa 4000 mq. posizionato su un lotto di terreno di circa 10000 mq. L'unità immobiliare è composta da un ampio capannone con tre accessi, un corpo basso con zona uffici dotata di servizi igienici, un ulteriore corpo basso con zona autorimessa, ideale per diverse attività commerciali, industriali o di stoccaggio. Un grande piazzale esterno completa la proprietà, offrendo uno spazio che può essere utilizzato per diverse esigenze. La posizione strategica, nelle vicinanze dei nodi autostradali e del lungomare della Via Messina Marine, rende questo capannone una soluzione interessante per chi cerca un'ampia metratura in una zona ben collegata.

È possibile visionarlo tutti i giorni previo appuntamento telefonico chiamando al nostro numero fisso 091.682.91.00 oppure inviando un messaggio tramite il servizio WhatsApp al numero 392.39.98.648. Il nostro franchising, su richiesta, mette a disposizione dei propri clienti un consulente KIRON che si occupa della mediazione creditizia ed assicurativa.

OGNI AGENZIA HA UN PROPRIO TITOLARE ED E' AUTONOMA.

Mostra tutto

Nelle vicinanze

Trasporto pubblico Trasporto pubblico
stazione di Palermo Brancaccio
stazione di Palermo Brancaccio
480 m
Trasporto pubblico
1,1 Km
San Giorgio
San Giorgio
400 m
XXVII Maggio
XXVII Maggio
500 m
Trasporto pubblico
780 m
Ricariche auto elettriche Ricariche auto elettriche
T.F. Car Service Palermo | EnelX
290 m
Scuole Scuole
Scuola Media Inferiore Franchetti
1,4 Km
Scuola Elementare E Materna Nino Bixio
1,6 Km
I.T.I.S. Alessandro Volta
1,6 Km
Scuola Media Statale "Don Lorenzo Milani"
1,7 Km
Scuola Elementare E.Salgari
2,1 Km
Farmacia Farmacia
Calì
1,5 Km
Di Figlia
2,6 Km
Farmacia
2,9 Km
Ospedali Ospedali
Ospedale Buccheri La Ferla Fatebenefratelli
1,7 Km
Ospedale Guadagna
2,8 Km
Supermercati Supermercati
Eurospin brancaccio
120 m
Simply Market
150 m
Conad
680 m
Ipercoop
1,4 Km
Supermercati
1,8 Km
Negozi Negozi
h&m
1,4 Km
Panificio e panelle da Vittorio
1,9 Km
Negozi
1,9 Km
Panificio D'Amico Rosario
2,1 Km
Angolo del Pane
2,5 Km
Bar Bar
Bar
1,7 Km
Bar Italico
2,7 Km
Ristoranti Ristoranti
Minichello Frutti di Mare
820 m
Il Campanile d'oro
1,5 Km
Mostra tutto

Caratteristiche

Rif.:
61163215
Piano:
Terra di 1
Totale piani:
1
Condizionamento:
Assente
Ascensore:
No
Riscaldamento:
Assente
Mostra tutto
Prezzo Prezzo
Informazioni in agenzia
Spese annue Spese annue
€ 1
Proponi il tuo prezzoProponi il tuo prezzo

Classe Energetica

G
G
G
G
G
G
G
G
G
EP globale non rinnovabile:
175.00 kW h/m² anno
EP globale rinnovabile:
0.00 kW h/m² anno
EP invernale del fabbricato:
EP estiva del fabbricato:
Anno di costruzione:
1970
Riscaldamento:
Assente

Ti interessa visionare l'immobile?

Fissa un appuntamento  Fissa un appuntamento

Richiedi informazioni

Clicca su Leggi per aprire l'informativa
* Questi campi sono obbligatori
Affiliato
Impresa Palermo Centro Sas
Via Cataldo Parisio, 70 90134 Palermo (PA)

Il nostro staff


  • Simona Inglese
    Affiliata
Via Cataldo Parisio, 70 90134 Palermo (PA)
Zona: Centro Sud
Mostra su mappa
Affiliato
Impresa Palermo Centro Sas
Via Cataldo Parisio, 70 90134 Palermo (PA)

2026 Tecnocasa Franchising S.p.A. - P. IVA 08365160152 - Via Monte Bianco 60/A 20089 Rozzano (MI). Ogni agenzia ha un proprio titolare ed è autonoma. Privacy policy | Policy utilizzo | Cookie policy